Développement Urbain
Notre projet propose des bâtiments en R+4, permettant de répondre au programme de 60 logements, tout en respectant les gabarits imposés par le PLU.
Afin de ne pas dénaturer le site naturel, et de ne pas générer de coûts excessifs en terrassements, nous avons choisi d’éviter la colline à l’Ouest de la parcelle, et d’aligner les bâtiments sur des lignes de niveaux proches.
L’implantation générale compose avec les bâtiments existants et avec l’orientation sud-est / nord-est, favorable au rafraîchissement naturel apporté par les vents dominants.
Fonctionnalité
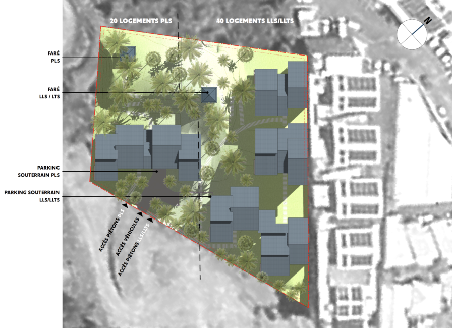
Un accès unique desservant les deux entités : immeuble LLTS / LLS, et PLS.
Deux parkings en sous-sol séparés sont réunis par un seul accès, des espaces extérieurs distincts, offrant, depuis le promontoire naturel conservé une vue ouverte.
Orientations principales des logements vers les espaces dégagés : jardins intérieurs, espaces livres de la parcelle.
Toutes les pièces des logements disposent de baies donnant sur l’extérieur, offrant une porosité optimale, une ventilation naturelle permettant le rafraîchissement du logement.
Leurs dispositions sont systématiquement traversantes.
Espaces Extérieurs
L’ensemble des logements ouvre sur des jardins paysagers.
Le relief existant contraignant a été utilisé pour valoriser des vues lointaines et des espaces partagés de qualité, non enclavés.
Système constructif
Une superposition rigoureuse des éléments porteurs garantit une maîtrise des coûts de structure.
Les trames des logements sont étudiées pour se superposer au parking sous-terrain.
Les choix des matériaux résultent des objectifs bio-climatiques du projet.
L’infrastructure est en béton armé.
La charpente est en bois traité adapté au climat.
Les couvertures sont en tôle ondulée thermolaquée.
La pente des toitures est suffisamment forte pour permettre l’écoulement des eaux.
Les parois du rez-de-chaussée sont en béton avec un doublage thermique intérieur.
Les murs en bois et la BTC composant les façades des étages sont des ressources locales.
Les débords de plancher en assurent la protection aux intempéries.








