Le contexte
Le projet s’inscrit dans une opération globale de requalification urbaine par la densification d'un ancien lotissement pavillonnaire de la SIM.
Le programme
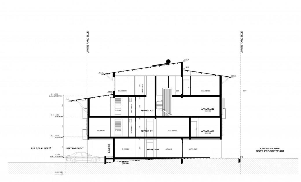
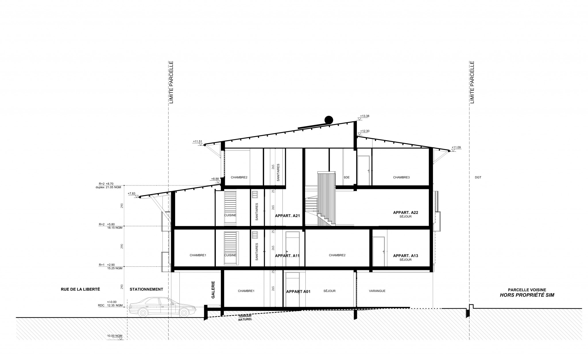
Le programme de l’opération LES MAWAS comprend 18 logements répartis en T2, T3 et T4.
L’implantation dans le site
Le terrain, de forme rectangulaire le long de la rue de la Liberté, a naturellement conduit à une implantation à l’alignement sur rue. Ce choix rationnel permet de conforter le paysage urbain et dégage une bande de terrain libre pour aménager un jardin en fond de parcelle.
L'immeuble est desservi par deux halls ouverts sur une galerie qui longe la voie et qui est couverte par des varangues.
Les logements, ses matériaux et le vert
Les logements sont tous traversants et s'organisent sur une épaisseur de plus de 18 mètres, conférant une forte inertie au bâtiment. hDes matériaux géosourcés et biosourcés ont été utilisés, avec une répartition rationnelle de ceux-ci, du plus lourd au plus léger, du bas vers le haut.
Le rez-de-chaussée en béton, permet de garantir pérennité et solidité (demande de la maîtrise d’ouvrage). Le premier étage est en remplissage de bloc de terre comprimée (BTC). Le deuxième et troisième étage sont en ossature et bardage bois, plus léger que la BTC.
À l'arrière, des jardins privatifs clôturés et orientés à l'Est sont aménagés.








